HUMER Retroliner 460
Kastenmaß (L×W×H) 6100×2520×2950 mm
Fahrgestell
Anhänger-Fahrgestell, extra tiefbauend, feuerverzinkt, gekröpfte Vierkant-Zugrohrdeichsel Deichsellaufrad, Auflauf-/Feststellbremse, 4 Ausdrehstützen, 4 Rangiergriffe, inklusive bugseitigem Staukasten auf Rahmenverlängerung, Fahrzeugbeleuchtung 12 Volt gem. StVZO, 13-polig
Aufbau
- Aufbau in Sandwich-Technologie im geschützten RETRO-Design
- außen und innen GFK (Glasfaserkunststoff)
- korrosionsfrei
- außen: Standardfarbe Weiß oder Schwarz (Sonderfarben möglich)
- innen: Lichtgrau
- GELCOAT-Oberflächenvergütung
- Isolation durch hochwertigen PU-Hartschaum
- kältebrückenfreie Dach- und Aufbauprofile
- Einfass- und Rahmenprofile Aluminium (weiß, pulverbeschichtet)
- Dachlüfter hochstellbar
- Holzverbund-Bodenplatte mit Unterbodenschutz und Einschicht-Vinyl-Belag
- 1 Zugangstüre abschließbar in Fahrtrichtung links
- 3 Verkaufsklappen (jeweils mit Gasdruckfedern hochstellbar, abschließbar)
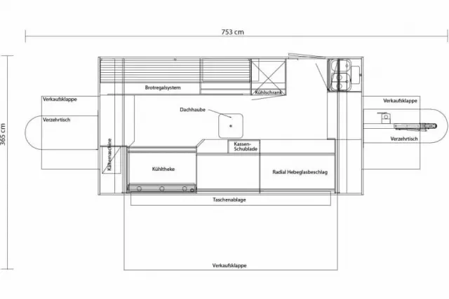
Innenausbau
- Spül- und Hygienebereich
- Edelstahl-Doppelspüle
- Warmwasserversorgung
- 2 Kanister
- Pumpe
- Netzgerät 12/120 Volt
- Untertischboiler
- Wasserhahn
- Knieschalter
- Radkastenumbauungen
Technische Informationen
Innenmaß (LxBxH): 4720x2400x2310 mm
Außenmaß (LxBxH): 6100x2520x2950 mm
Zul. Gesamtgewicht: ca. 2.200 kg (Tandemachse)
Zuladung abhängig von Anhängerausstattung

HUMER Verkaufsfahrzeuge
Mobiler Verkauf leicht gemacht! Ob für Snacks, Backwaren oder Fleisch - werfen Sie einen Blick in dieses Dokument und lassen Sie sich überraschen, welche Möglichkeiten Sie haben.